1 / 5
Specification Details:
| Distinguishing Mark & Weight | ||||
|---|---|---|---|---|
| 1.2 | Model designation | JX2-1 | ||
| 1.3 | Drive unit | Electrical | ||
| 1.4 | Operator type | Standing | ||
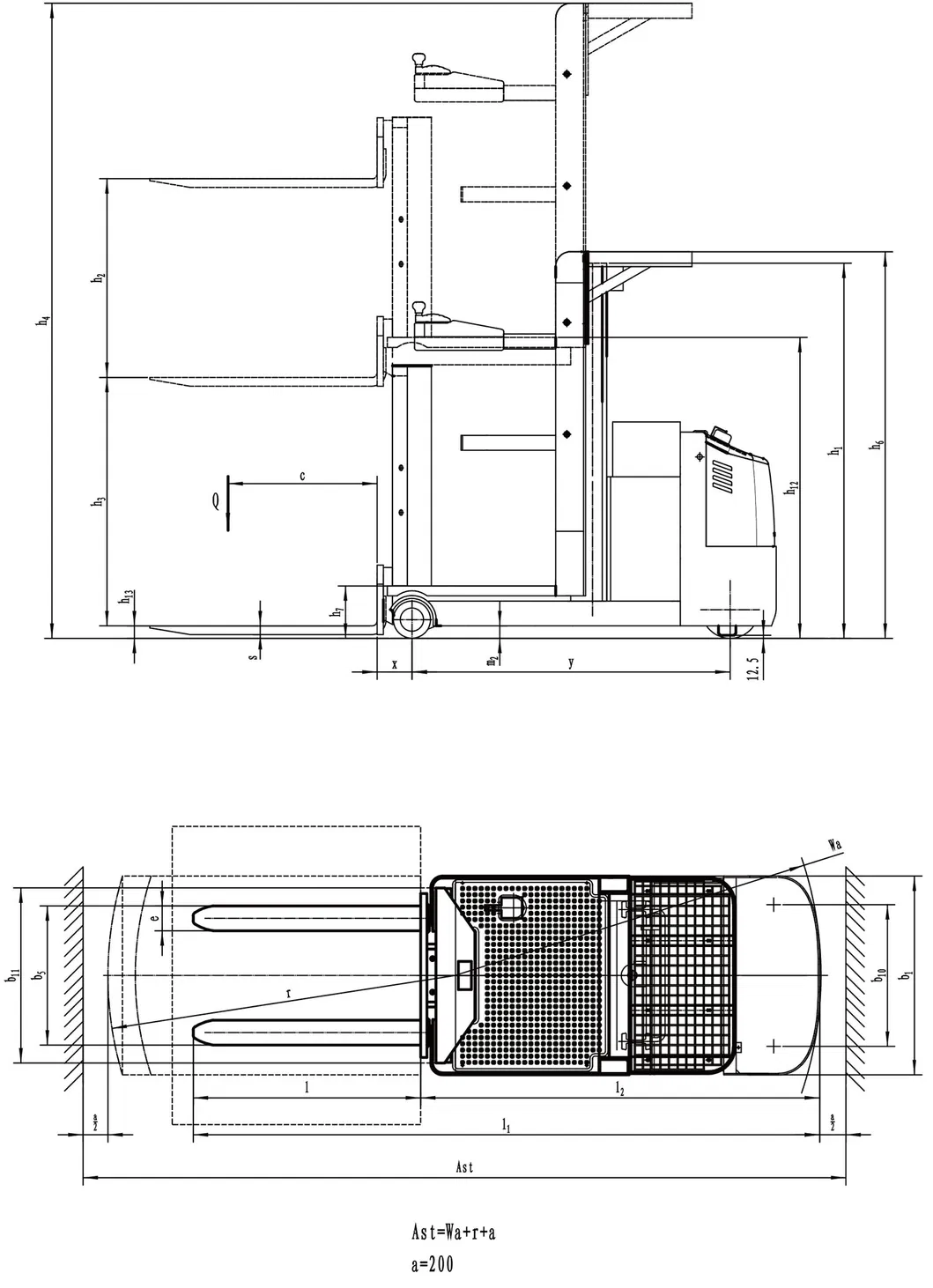
| 1.5 | Rated capacity (Q) kg | 700 | ||
| 1.6 | Load center distance (c) mm | 600 | ||
| 1.9 | Wheelbase (y) mm | 1280 | ||
| 2.1 | Service weight (include battery) kg | 1620 | ||
| Dimensions & Performance | ||||
| 4.4 | Lift height (h3) mm | 1000 | ||
| 4.19 | Overall length (l1) mm | 2520 | ||
| 4.21 | Overall width (b1/b2) mm | 800 | ||
| 4.35 | Turning radius (Wa) mm | 1470 | ||
| 5.1 | Travel speed, laden/unladen km/h | 8 / 3.7 | ||
| 5.10 | Service brake type | Electromagnetic | ||
| 6.4 | Battery voltage/nominal capacity V/Ah | 24V/360Ah | ||



